New Dollar General Store Planned For Century
March 2, 2021
A new Dollar General is the works for Century.
The development review process is underway for the new store in the 7000 block of North Century Boulevard, on the west side of the road between Highway 4A and West Hecker Road.
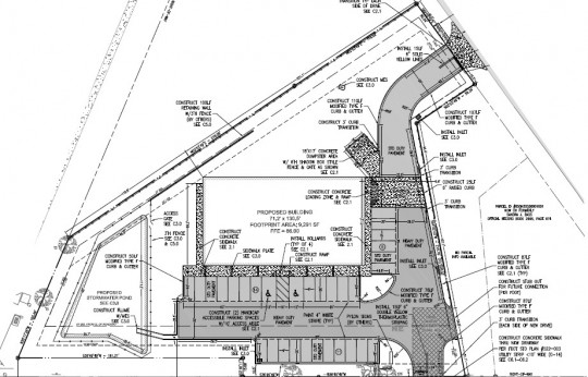
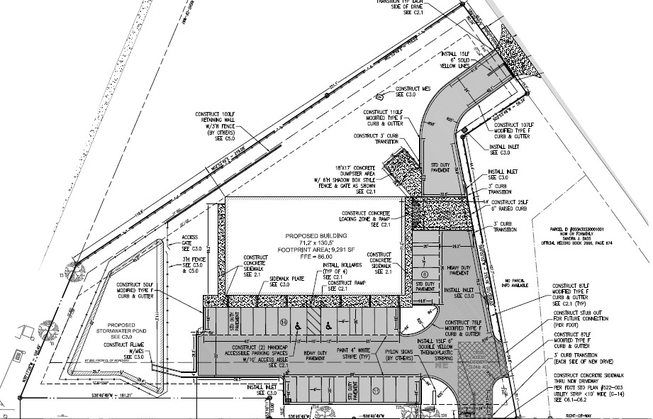
According to plans for the proposed store, it will be 9,291 square feet on about 1.5 acres. It will have 31 total parking spaces, with entrances from North Century Boulevard and West Hecker Road. The developer has told the town that they will remove 17 trees from the property. They plan to replant those 17 trees at the site, along with five flowering trees and 15 shade trees in the Nadine McCaw Park on North Century Boulevard, just northeast of the planned store.
Plans for store must pass the development review process and a building permit must be issued before construction can begin.
Because it will be located within the Century town limits, the proposed Dollar General on North Century Boulevard will not require a county zoning amendment like a 10,640 square foot store location under consideration in Walnut Hill. RELATED STORY: Dollar General Wants To Build In Walnut Hill. It Would Change The Future Of North Escambia Rural Zoning.
NorthEscambia.com graphics, click to enlarge.
Comments
23 Responses to “New Dollar General Store Planned For Century”




REGARDING:
“We need food places not another dollar general!!! ”
Dollar General sells food.
Maybe you can start a restaurant in the vacated building – unless this is an “as well” rather than an “instead of” — lots of parking space.
“Who on earth thinks we need ANOTHER DG anywhere in Escambia county, Florida or Alabama?? ”
The REAL question is: Is it even POSSIBLE to have enough Dollar General stores???
Scatter three or four around Bluff Springs while you’re at it.
David for a chicken in every pot
Dollar Generals as needed
Who on earth thinks we need ANOTHER DG anywhere in Escambia county, Florida or Alabama?? Between DG and FD, there are8 between Atmore and Flomaton/century. That is not including Brewton ,Jay& Molino.. Why not refurbish the existing buildings into some business that is not overflowing in the area? There is the Burger king building that could reopen as some other fast food , or reopen as what it was. I thought it done good business. Don’t know why it closed. Whataburger’s prices are rediculous.. Probably bc there is little competition besides McDs and Hardee’s over in Flomaton.. And the old Panhandle station at the corner of hwy 4 and 29.? Turn it into SOMETHING.! We do not need another convience store or gas station, but surely it could be opened as something.. Maybe an Arcade or pool and darts club for kids or something that is needed for the youth in the area that need an outlet before they get any worse than they are .. Give the kids something to do besides steal and kill.! Geez people.. Come on!!
LOL, who thought this would be a good idea?
Hopefully the new store will have good management and hire enough employees to stock shelves after hours. The current DG and FD ALWAYS have boxes blocking aisles and it makes it difficult to maneuver.
Good choice. Seldom have to go to the grocery this will be awesome. Make up for the tax increase in Flomaton and take advantage of people looking to save 11% on tax. It will pay for itself and Flomaton will know that the people in town will look elsewhere when they raise sales tax without a thought about the people in the community
WE DONT NEED ANOTHER STUPID DOLLAR STORE WE HAVE ONE PLUS A FAMILY DOLLAR ACROSS FROM EACH OTHER. WE NEED MORE RESTAURANT AND PLACES FOR THESE KIDS TO CALL A COMMUNITY CENTER WITH ACTIVITIES FOR THESE KIDS
Sara L got it right…. this is a very bad site because of the blind hill southbound lane… someone needs to look closely at the Hwy. access / egress plan for this business or people are going to be killed on the Hwy 29.
There are not enough people in Century to support another dollar store. And if they say traffic or surrounding areas will boost sales, they are lying. All surrounding towns, Jay, Flomaton, Brewton, Atmore, Molino have their own dollar stores. They will not come to Century to shop at a dollar store. We need to bring in alot of unique businesses.
Take for example the gas stations in Century. Fifteen years ago there were 5 fully functional gas stations and 1 convenience store. Now we have 3 gas stations, 1 convenience store that use to sell gas and one convenience store that will be a restaurant soon and one fairly good size empty station that’s been closed for almost ten years.
I hope they invite the public for comment. I will be there! I’m not against growth but we need to be smart about it. Need to look how this will benefit us down the road instead of the right now!
Bet it gets robbed within 24 hours after opening.
We need food places not another dollar general!!! Who’s brilliant idea was this ? We have a family dollar and dollar general right across from each other. We have no restaurants besides Whataburger! This has to be a joke
How many dollar generals can one county take?
I love on front street. I’m not upset about a new location of DG or any new business, BUT… that location is horrible! There is a hill right there, and people do NOT do the 35mph speed limit through there. Just my 2 cents but sounds like it’s going to be a caution or traffic light there to be in the safer side.
oversight i was wondering the same thing
Sure hope it comes with new management. The one we have is pitifully run. The last time I went into it I turn him into Corporate and vow to never go into that store again. I refuse to be treated in a disrespectful way by someone I help pay his salary!!!
Sounds like a great idea to me and the town can use the money from it being in the town limits.
Another example of a corporation getting what they want because they have the money to!
It will be nice. We need another grocery store to that would be nice.
Does this mean that they’ll close the one near the state line? Likely so, and Century will have yet another eyesore abandoned business building on US 29.
Contributes to the tax base, gives at least a few jobs….how exciting.
Another one? How many Dollar Generals / Family Dollars does Century need?? Already two there & also down road in Flomaton….???
Are they going to clean the one up one mile up the road? It’s nasty inside last time I went. Actually I’m surprised to see this.
How many Dollar stores does Century need?
Well we will find out how the new mayor feels about growth. He’ll be looking out his window at the DG store