Five WaWa Stores In The Works For Escambia County. Here’s The List.
July 24, 2024
The hoagies are not here just yet, but WaWa fans will soon be ordering them from a local WaWa in Escambia County.
Five Wawa stores are currently in the works for Escambia County. Here is the status of each:
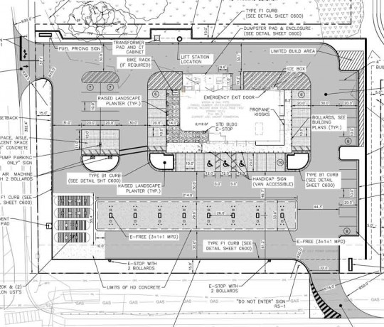
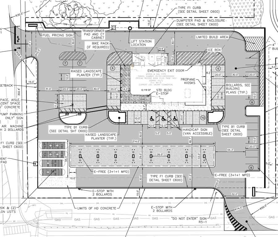
Plans were approved were October 2023 for a 6,119 square feet location at the corner of Beulah Road and Nine Mile Road (plans pictured left). Site work is currently underway on the 17.36 acre parcel across Nine Mile Road from Publix (pictured above).
2. Pine Forest Road near I-10
A groundbreaking ceremony was held in April (pictured below) to mark the start of construction of a WaWa store at Ransley Station at Pine Forest Road and Sharon Lane, just north of I-10, and is expected to be open by the end of 2024.
“We couldn’t be more thrilled to break ground on our first store and celebrate with our newest soon-to-be neighbors,” Joe Collins, director of store operations for Wawa, said after the groundbreaking.” We are thrilled to be kicking off our expansion into Pensacola and can’t wait to open our doors.”
3. Highway 98
A third Wawa store was approved by the county in May for 9262 West Highway 98 at Blue Angel Parkway.
4. North Davis Highway
The Escambia County Development Review Committee approved plan in June for another planned WaWas at 8503 North Davis Highway, near Johnson Avenue and HCA West Florida Hospital.
5. Pensacola Boulevard
A fifth WaWa has been proposed for 6650 Pensacola Boulevard at W Street. This location is still in the review process before the Escambia County Development Review Committee.
About WaWa
Wawa, Inc., a privately held company, began in 1803. Wawa stores are currently located in Pennsylvania, New Jersey, Delaware, Maryland, Virginia, Florida and Washington, D.C. with nearly 1,000 locations to date. The first Wawa Food Market opened in 1964 in Pennsylvania as an outlet for dairy products.
Open 24 hours a day, 365 days a year, WaWa offers freshly prepared foods, beverages, coffee, and fuel. The stores offer a large fresh foodservice selection, including Wawa brands such as custom prepared hoagies, freshly brewed coffee, hot breakfast sandwiches, hand-crafted specialty beverages, a dinner menu including burgers and an assortment of soups, sides and snacks. Forbes.com Ranks Wawa as #20 of America’s Largest Private Companies, #1 in Convenience Category for America’s Best Customer Service by Newsweek, one of Forbes 2023 America’s Best Employers for Women and New College Grads.
NorthEscambia.com photos, click to enlarge.
Comments
28 Responses to “Five WaWa Stores In The Works For Escambia County. Here’s The List.”





A quick and simple temporary fix, eliminate the current no turn on red at pine forest and I-10!
If you want to get a feel for how rapidly urbanization can spread inland (aside from Pace), take a ride along US 331 from DeFuniak Springs to Freeport.
What is happening along US 331 is what is going to happen to US 29.
Santa Rosa County is one of the top two fastest growing counties in Florida, and Florida is now approaching 22 million.
If you are looking for country living, might I suggest Mississippi (not Alabama), where they are begging people to move in as the decline in population is continuing beyond what already occurred between 2010 and 2020. And, retirement taxes are quite favorable.
In the meantime, expect a LOT more development in Escambia and Santa Rosa Counties in the decade to come. (Is US 29 ready for this?)
Oh, Anne don’t get me started on traffic congestion…. oops to late XD That new WaWa on Pine Forest comes with a traffic light and 3 new apartment complexes all at a MERGE LANE into a single north bound lane.
There are no plans in the works to make that merge lane into a second lane even though there is plenty of room for that lane. Stay off Pine Forest, if at all possible, between 2pm and 6pm or you’re gonna be there awhile and that’s how it is now imagine when that store, light, 3 apartment complexes are all operational.
I waited until today to read the comments. None were my first thought. Aren’t 5 stores just a little excessive? 5 stores to congest traffic while people pull in and out all day long? What is the point?
Everyone who “bought way out in the country” didn’t. You bought land in an undeveloped suburb of a city within a county soon to have well over 500k residents. “Way out in the country” is middle of nowhere rural Alabama. You wanted the amenities of living close to a city without the eventual expansion that comes with it. I’m sure there’s plenty of great deals on land where it’s an hour to the closest grocery store. Try there.
Want freedom and free market then whine when something’s being developed in your backyard.
Buy a bigger backyard or don’t tell others what they can do with their land.
Yeah I don’t like it either but it is what it is.
Why don’t we just build something in every open space in the already overly crowded county. All my life I have wanted to live in the country. Now, the city mess is getting closer and closer and driving is becoming a nightmare. I was born and raised in Atlanta and it was a nice town in the fifties.. Now, it is a giant MESS to me and I do not drive through there anymore. And, I hate it there now.
@JJ and bigblock- we don’t want your buildings upon buildings. That’s why we bought way out in the country as opposed to being in the rat race that is Pensacola! It is rural out here. We don’t need or want another gas station just a few short feet from the Tomthumb! SMH
I read comments all the time that abhor any new large developments from Cantonment north to the state line, but then see people wanting a Buc-ees.
We want development, but we don’t want development.
If you’re up in arms about out of town companies owning WaWa, you’ll be glad to know that:
EG from the U.K. owns Cumberland Farms
Couche Tard from Laval, Quebec owns Circle K
WaWa is indeed based in Pennsylvania
Bucees is based in Texas
Gone are the days when Han-D-Pac and Tom Thumb were based in Crestview.
I do believe you’re right Annie…..
You too bigblock354 a little competition at that intersection would be a good thing.
I agree close the I 10 pine forest road exit and there won’t be any traffic back up
Pine Forrest road and I -10? Just close the I-10 exit, problem solved.
Where i come from we call them WEWEs.
Must be a northern thing. I just don’t get the excitement for them.What I do get is there should have been some roadway modifications before anything else was built to add to the cluster there on Pine Forest Rd. & I 10.
I vote for a Buc-ee’s!! The food is great and lots of cool stuff to look at and buy, if you want too. I love Buc-ee’s!!!
What happened to the gas station going in at 97&29 NW CORNER. lots of ground work and then stopped suddenly several years back?
Can’t wait till we have a convince store on every corner instead of just every other corner. At 9 mile and Beluah publics on one corner, circle K on another, tom thumb another and now wawa.
I guess we call that progress.
How about 29 & 97. Across from Tom Thumb. Land is already partially cleared.
#4 8503 North Davis Highway has several large oak trees there now that have probably been there for 50 years. Will be sad to see them cut.
I saw a story on TV about a new Wawa store opening in Alabama. We drove over and I was so excited —me not knowing any better, I was thinking it was comparable to Buccees. Wrong!!! It’s a Circle K with more spacious aisle and higher priced snacks, and a kiosk to order hot food. I won’t be visiting any of the Wawa stores unless their gas is cheaper.
I’ll support Texas’ Buc-ee’s before Pennsylvania’s WAWA.
I must’ve missed the series of editorials covering the need for adding a by-pass around the area or at least upgrading the 1950 roadways/infrastructure
always the same over built areas—hwy29 is building houses-ZERO stores other than a dollar general–who does the planning??? It certainly is not a women—it is disgusting
Convenience Store Owners better clean up most of those nasty stores they operate. WaWa makes other c-stores look like trash cans. WaWa is awesome!
How about the intersection of Hwy 4 and Hwy 99 ?
Definitely need something there !
Please come to Avalon in Milton & 90 in Pace
Yes, can’t wait. I always visit a WAWA when I’m down south.