New Waffle House Approved For West Nine Mile Road In Beulah
April 1, 2025
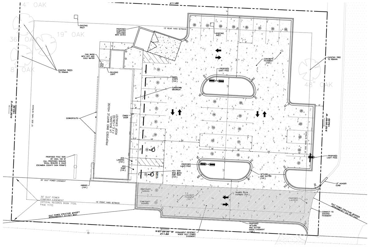
Development plans for a new Waffle House near Beulah Middle School have been approved.
We first told you about the plans back in August 2023, and plans were approved in the last week by the Escambia County Development Review Committee.
The new 2,000 square foot-restaurant will have 33 parking spaces on 0.75 acres at 6034 West Nine Mile Road at the intersection with Rebel Road. That’s next to an Anytime Storage facility across Nine Mile Road from Beulah Middle.
Comments
2 Responses to “New Waffle House Approved For West Nine Mile Road In Beulah”



This is a horrible addition. We need more businesses and restaurants in the area that are pro growth. Places that people want to move to and set roots because of these places. This is not it. Do better.
Curious why it took 19 months or so for the plans to be approved??