Waffle House Proposed Near Beulah Middle School
August 23, 2023
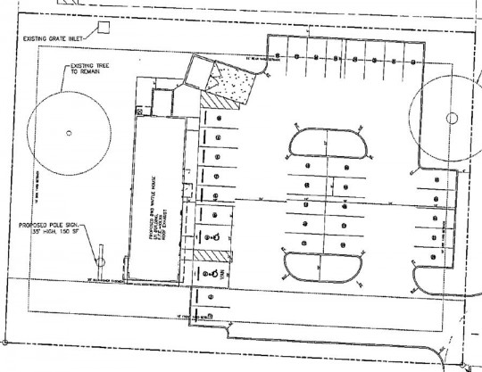
A new Waffle House is planned near Beulah Middle School.
The new restaurant would be located on three-quarters of an acre near 6030 West Nine Mile Road, next to Anytime Storage, across from the school.
The proposal goes before the Escambia County Development Review Committee Wednesday for a pre-application meeting.
Additional steps are required before the project can reach the building permit stage.
Comments
12 Responses to “Waffle House Proposed Near Beulah Middle School”



What happened? Was it approved?
As I read all comments, there a quite a few folks that have NO idea where this proposed site it on a map!
A. It is near 5 miles from the Interstate, and most pine trees in the area are over 100ft tall. So a 35ft sign is not unreasonable (most are that tall now).
B.The school safety issue is for WALKING STUDENTS. Cars are not an issue per FDOT.
C. The site is 2 miles away from the OLF8 site!
D. Please do not confuse the mess of the OLF8 fiasco with companies trying build businesses.
E. Please do not waste time asking about things like this in the Master Plan meeting as it will focus on the OLF8 area, not areas miles away.
Use some the land at OLF and build a new high school. With all the new housing, the current schools are overflowing.
I like Waffle House.
Really.. a 35 foot tall pole sign.. guess you will be able to see it from the interstate. There needs to be some kinda sign ordinance along this part of 9 mile so we don’t look like your typical interstate exit. Low profile classy signs in brick, masonry ect not ugly pole signs. whats next and it is coming folks. Taco bell, BK, whataburger you name it and they will line 9mile with 35-40 50 feet signs. email commissioner Jeff Bergosh on this. He lives in Nature Trail and sure he doesn’t want this either. Stop it before it starts
This is amazing i get yes traffic but traffic is going to be everywhere and we have been waiting for more food places out here! My family is so excited it brings more jobs to people and more food instead of more car washes
Everyone has a great point, however they’re are talking a school where the road is to dangerous to cross to get to the proposed restaurant. We need some safer roads, before we build a restaurant across from a school.
Waffle House is a great idea for west Nine Mile Rd, but Civic Center not so much. Talk about Traffic. A Civic center would give us that
WHAAAAT no one complaining that their way of life is over and done with? Nothing about all the traffic or drug dealers associated with change??? I AM SHOCKED!
Steve. That is a brilliant idea of moving the civic center to OLF
Waffle House that’s a start. Now in my opinion would be a great time to relocate the Civic center to the vacant land instead of more homes!
At least its something different. Could have been a chicken joint or a car wash. This will give the late night partyers a good place to sober up.