Ashton Brosnaham Park To Get $2.7 Million Locker, Multipurpose Building
January 20, 2023
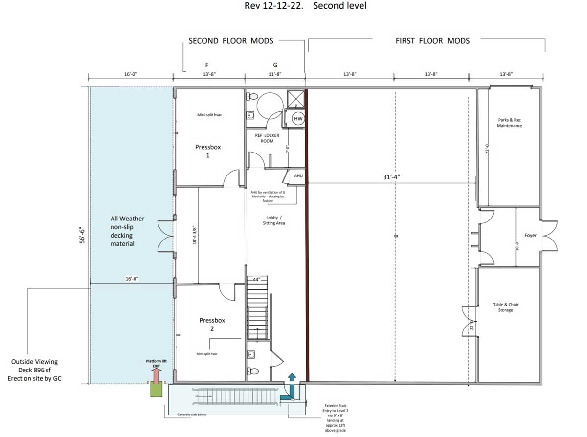
The county will construct a new $2.7 million multiuse locker room facility at Ashton Brosnaham Park.
At a Thursday meeting, the Escambia County Commission approved a $2,714,510 contracted with AAA Affordable Structures for the two-story building (plans below) to meet the growing needs at the park off East 10 Mile Road.
Ashton Brosnaham has become a popular venue, hosting everything from the nationally televised SEC Women’s Soccer Tournament and other sporting events to birthday parties, family reunions and group meetings.
The open area within the new building will be suited for additional team lockers for those larger sporting events, and also compatible with the other activities.
The SEC Women’s Soccer Tournament will return to the park this fall. Last year’s event set attendance records. According to the SEC, there were 3,025 in attendance — the largest crowd for a game in the 37 years of SEC women’s soccer. The overall tournament also set a SEC record with 10,450 total fans. Escambia County will host the SEC Soccer Tournament through 2024.
And there’s another benefit from the tournament, the parks director said. Now that the tournament is packed up and gone for a year, upgrades to the facilities at Ashton Brosnaham remain to benefit local residents. There’s new turf on the stadium field, enhancements on the practice field, new fencing around the perimeter of the field along with other improvements.
“We made a lot of enhancements to brighten the facility. The SEC is here one week out of the year, but for 365 days a year our job is to serve the residents and the soccer community, Escambia County Parks and Recreation Director Michael Rhodes said after the tournament. “We know they (local players) are going to be proud, and they’ll always be able to say that they’re playing at the venue that the SEC Soccer Tournament was held at.”
The modular-type building is expected to be completed in August.
RELATED:
- SEC Soccer Tournament Sets Attendance Records, Provides Local Economic Boost
- South Carolina Upsets No. 1 Seed Alabama For SEC Tournament Title (With Photo Gallery)
- Ole Miss Shuts Out LSU; Mississippi State Tops Texas A&M. And Escambia County Wins In SEC Tourney Day One
NorthEscambia.com photos, click to enlarge.
Comments
5 Responses to “Ashton Brosnaham Park To Get $2.7 Million Locker, Multipurpose Building”





How about more bleachers for all those fans? We were standing in the grass the whole SEC final game!. Would have been amazing to have a
better view!
Hope it’s not to be built on the open field area east of the soccer field.
As a nearby resident AND TAXPAYER, I just ask that the parking at the three elementary schools be opened up. But, get the damned cars off of the sidewalks.
I, and others, regularly walk, bike or run this area to exercise. We’re forced onto the road at these events.
I’m willing to share the roads and walkways, but those of us who pay the taxes for the infrastructure here, are told to get over it or find someplace else to live. I’ve lived here for 23 years, LONG BEFORE these events started.
I loved the flag football tournament some years back. I’m glad this soccer tournament was a success. Just be courteous to the ones who foot the bill.
Looking at the proposed layout design, one side – the side with what appears to be two toilets and two urinals – only has a sink in the handicap stall and in the Janitorial Closet? The other side with 4 toilets has a sink in the handicap stall and three sinks. Build it… change order coming up next. Cause builders make their money on change orders.
Outstanding! Way to go Michael Rhodes!