Casey’s Updates Plans For New Convenience Store At Highway, Highway 97 In Molino
April 28, 2025
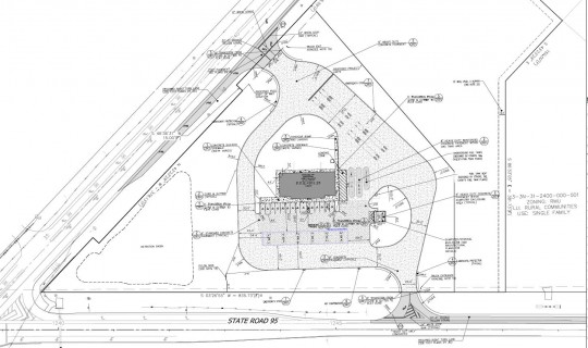
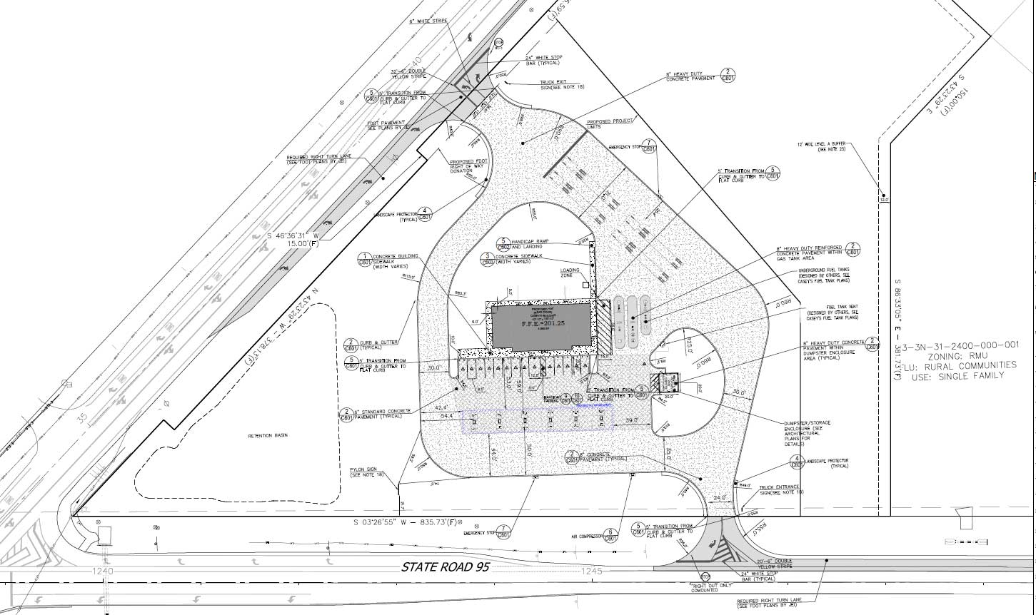
Updated plans have been filed for a new convenience store at the intersection of Highway 29 and Highway 97 in Molino.
Costcorde, Inc. of Houston recently submitted the plans to the Escambia County Development Review Committee (DRC).
The updated plans show a 4,569 square foot convenience store, 12 gas fueling stations and two diesel fueling payments. According to the plans, there will only be right turn in and right turn out access on Highway 29 and a full access connection to Highway 97.
Casey’s is the third largest convenience store and fifth largest pizza chain in the United States. Last year, Casey’s announced the acquisition of Fikes Wholesale, owner of CEFCO Convenience Stores, in an all-cash transaction for $1.145 billion for 198 stores.
The plans are undergoing DRC internal staff review and have not yet been set for a public meeting.
Plans were filed for a convenience store in the same location back in 2017 and 2019 by an Atmore company, but those projects were never finalized. The new store will be across Highway 97 from an existing Cumberland Farms store that is still operating under Tom Thumb branding.
NorthEscambia.com graphics, click to enlarge.
Comments
3 Responses to “Casey’s Updates Plans For New Convenience Store At Highway, Highway 97 In Molino”




We don’t want it in Molino.
@John Connor
I agree. Just a couple of DCFC stations with at least 250kw speeds would be nice for people traveling to the beach.
Maybe somebody important from Casey’s will read this. Please build charging stations,I don’t know why no other convenient store chain has done this. I figured W AWA would but, nope! So please if it isn’t already in the plans, charging stations!!! Plus it would be the only ones up there so $$$ can be made Casey’s!