Century Finalizes Plans To Seek $6.9 Million In Grants, Most For Community Center
May 8, 2025
The Town of Century has finalized plans to apply for $6.9 million in grants, most of which will go for a new community center.
This week, the town voted to apply for a $5.4 million Small Cities Community Development Block Grant (CDBG) from Florida Commerce to construct a new Carver Community Center on Jefferson Avenue. They will also seek $750,000 for a minor home repair program.
The town will also submit three applications totaling $750,000 to create the design to resurface of Barnwell Lane, East and West Cottage streets, and Cedar Street. The street portion of the request would be design only in anticipation of potential paving at a later date.
The minor home repair program would provide home repairs to address structural code enforcement issues and access issues such as ramps that would allow low or moderate income individuals to remain in their homes for a longer period of time. The town will determine later if roofing repairs or upgrades might be included.
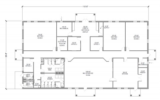
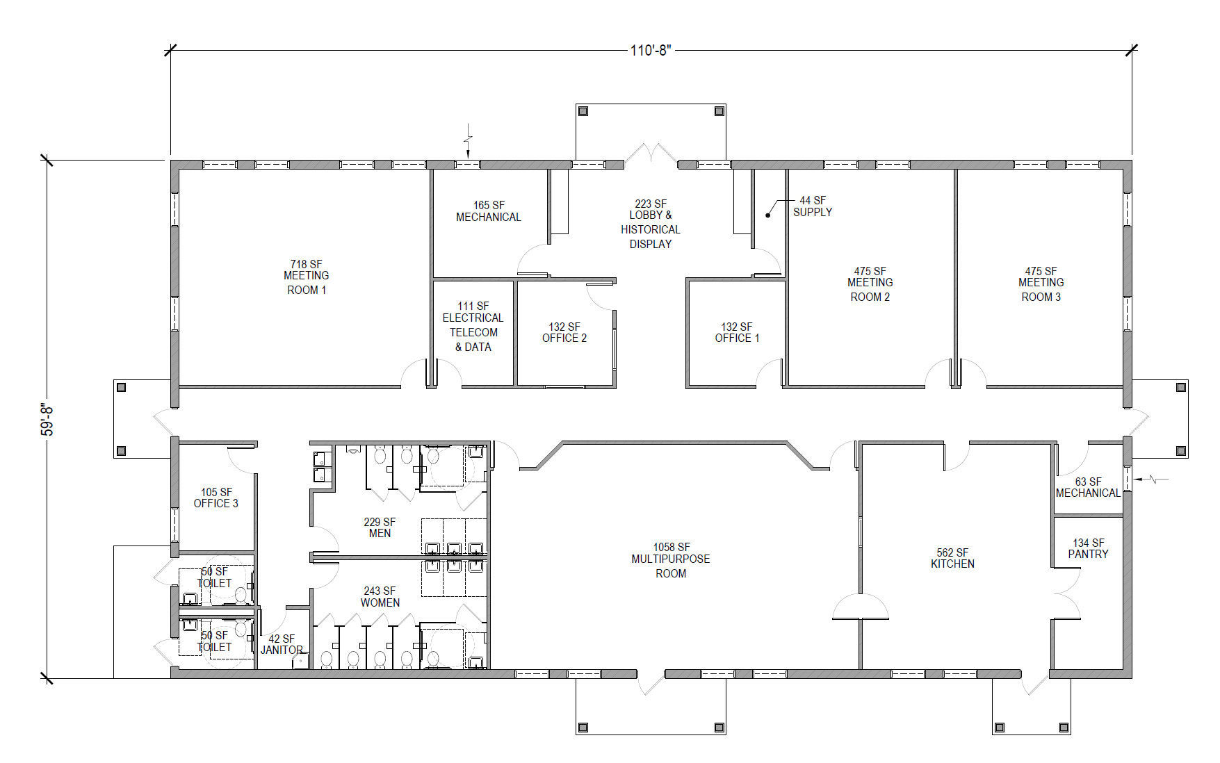
If awarded, grant funds would construct a new Carver Community Center (design pictured below) on Jefferson Avenue. The town previously received a $3.255 million state grant for a community center on Jefferson Avenue, but most of the funds were clawed back by the state. The town was able to use $514,650 to pay for the engineering, architectural and grant administer expenses that left the town with no building but a complete set of shovel-ready drawings.
The town is accepting public comments to include with the grant applications. Comments should be emailed to cmoore@centuryflorida.us by May 12.
Pictured above: Howard Brown, interim town manager, explains CDBG grant applications to the Century Town Council and local citizens during a public hearing this week. Pictured below: The Carver Community Center. NorthEscambia.com photos, click to enlarge.
Comments
12 Responses to “Century Finalizes Plans To Seek $6.9 Million In Grants, Most For Community Center”







Why not, before there are any grants we make sure the city is viable and sustainable. We’ve given two grants for the waste water treatment,is the plant being maintained is there a 5 year,ten year plan? If not just dig a hole and dump the money down.What about the recent theft has that been resolved?
If the community in that are want a nice building and a playground why don’t they raise money there self. It will be for them only. They can have fund raise like sell plates car wash bake sales auction off baskets with nice items. On the play parents let children go without supervision. I once was at a park with my grandkids later some small kids probably 6 to 6 years no adults around. Even if I lived next to the park I would not let my kids or grandkids go and play by there self’s. Tax money wasted just for that community.
Waste of money the only ones will benefit is the ones that live there. Parents let kids go to the park with no adults be more drugs dealers there. Freedom road bridge needs fixing I don’t live on that road the bridge needs fixing before the other bridge messes up.
Turnoff going to Stone Lake in front of Century Woods apartments
that road needs fixing so bad to the right or to the left
it’s like being on a roller coaster ride (holes) no lines on road dark from hwy.29 all the way to Century Nursing Home it’s dark somebody needs to talk about getting that fixed
HELP———
WHAT??? $750,000 just for a “design” to resurface streets? That would buy a whole lot of blacktop! Does a resurface really require a design study? Sounds like more wasted money.
I’m in a perpetual state of “What?” from reading about Century. Their total population is about that of a large subdivision, yet they keep wanting to spend money like they are a mid-sized city instead of a tiny town. While they obviously love grants, that’s still a lot of spending even from their own taxes and I can’t grasp why they aren’t fed up with it. Road, sewer, water and a park seems like it would cover less than 2,000 total people. Something for storm shelter would make sense, but these plans don’t appear to be that either.
To reader, so the grant writer can make a pay check.
Instead of waisting money on that why don’t they fix the one they already have on hwy 4 terrible waist of money so glad I do not live in the Century area any more century has gone way down hill
Why not buy a used circus tent and let the clowns meet in it instead of the town hall. This would surely not need a grant and save our outsiders tax money
Why? This is less than 5,000 feet from the new $10+ million gym/community center state taxpayers are paying to building over on Hecker, and less than 5,000 feet from the existing community center on Hwy 4 that’s full of mold because they don’t care for it. And it’s 1500 feet from the “business center” community center.
They have two existing community centers, and we are paying $8,800 for every man, woman and child in Century to build two more? 15.4 million and the water wells are broke. Please explain.
$5.4M for 6,600 sq feet is $818/sq ft. for a community center in a town with less than 2,000 citizens. Seems like a collosal waste of money and extremely over priced.
Maybe a Michigan construction company can get the contract because no one in Century knows construction or how to paint .