Plans Filed For Pine Barren RV Park On Highway 29 Near Camp O’ The Pines
May 5, 2025
Plans have been filed with Escambia County for a new RV park on Highway 29 just north of Cotton Lake Road, across from the Camp o’ the Pines camp.
The proposal, filed by Heather Cobb of Pensacola, states that a 22-acre plot will be subdivided to allow a single-family home while 15 acres will be zone commercial for Pine Barren Park. The current zoning is rural residential.
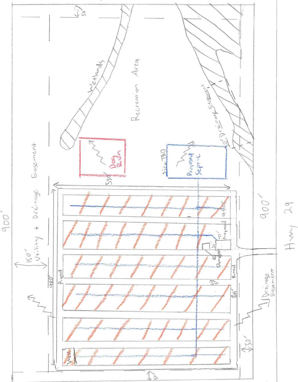
“The primary goal of the park is preservation of the current habitat and wetlands area to provide an enjoyable and nature focused RV park. All efforts will be taken to leave the natural state of the land intact,” the proposal states. A road will be constructed around the perimeter of the park with lanes about every fifty feet while removing only a minimum number of trees. The RV berths, each capable of house a 14-foot vehicle will remain grass and not be paved, according to the proposal. There also be an 800-square-foot office building. The park will served by a water well, and a septic field will be used for sewage.
“There will be various recreational amenities on the property including benches, swings, picnic tables and such,” the proposal says.
The application documentation does not explicitly state the number of RV berths.
A hand drawn application document appears to show six RV berths drawn in crayon.
Pine Barren Park has been set for a pre-application meeting with the Escambia County Development Review Committee at 1 p.m. on Wednesday.
Comments
7 Responses to “Plans Filed For Pine Barren RV Park On Highway 29 Near Camp O’ The Pines”





Leave the land and animals that live there alone. We are loosing our livestock from
predators. They are being displaced from their homes and their undomesticated food
and vegetation source is being taken away. It seems like their is no consideration
given for the impact the rest of the residents in the area either.
Absolutely NO for “commercial” rezoning. Have seen this take over of land way too
much. Must keep as rural residential,,
Okay these are not 21st century professional drawing. but do you know how much they would cost? This is to see if this ideal can be approved. Before a shovel hits the ground then there will be “real” site plans that show all the things missing from this drawing. The owner will find out all the other question he/she will need to answer before getting approved to build this.
A long term semi-permanent resident rv park?
If the county accepts this as is as a “development plan”, well, we might all just throw in the towel.
Ummm isn’t there a cemetery on that land?
https://www.findagrave.com/cemetery/2322377/old-negro-cemetery-at-pine-barren
There is no way there is enough information in that application to make a determination. How many sites are there. Are the roads asphalt? Are the parking pads for the RV’s concrete or just dirt? Is the electrical underground or overhead and what circuits are run to each pad? And about 20-30 other things.
Appears over 45 RV spots. Septic next to drainage area may not go well with health department regulations
Not sure distance on well to sewer connections at RVs
Recreation area over the septic field?
What about fire hydrants,etc.
plans look pro… seems legit.