Foosackly’s Restaurant Planned For West Nine Mile Road
March 26, 2025
Foosackly’s has filed plans to build a new restaurant on West Nine Mile Road, which would be the chain’s third restaurant in the Pensacola area.
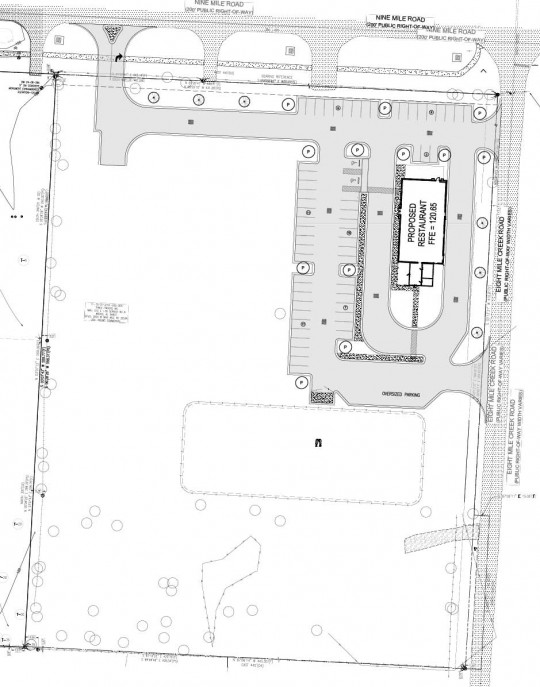
Foosackly’s parent company, Mobile based Three Fingers, Inc., filed the application this week with the Escambia County Development Review Committee for a 4,400 square-foot location on 5.61 acres at 2605 West Nine Mile Road, the corner of West Nine Mile and North Eight Mile Creek Road.
Plans show a single drive-thru lane with access from both Eight Mile Creek and Nine Mile roads. Plans show 60 parking spaces, including two handicap spaces.
The plans are not yet set for review or public hearing by the Escambia County Development Review Committee.
Comments
2 Responses to “Foosackly’s Restaurant Planned For West Nine Mile Road”




I like Foosackly’s, but I think the area is getting a little saturated with chicken finger restaurants. We already have another Foosackly’s, Slim Chickens, and Zaxbys on Nine Mile Rd.
You can’t fight the Foo.