Scott’s Pharmacy Proposes Construction Of New Molino Location
July 7, 2024
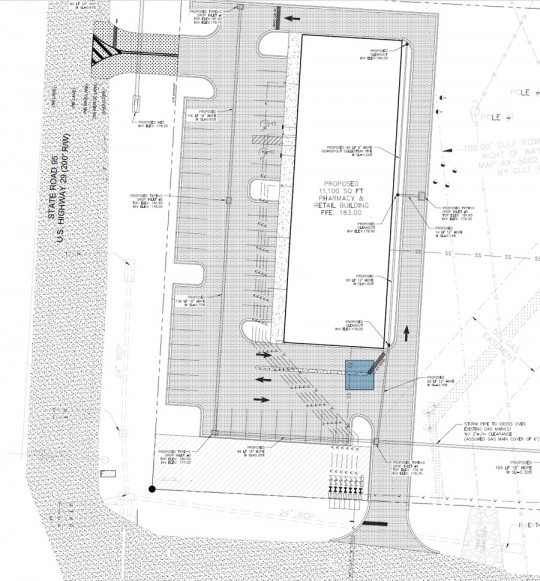
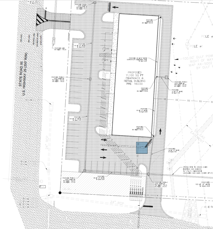
Scott’s Pharmacy is planning a new standalone location in Molino.
At 11,100 square feet, the pharmacy and retail building will be located at the northeast corner of Highway 29 and Molino Road, which is across Highway 29 from their current location and just south of a Florida Power & Light substation.
The location’s parking lot will have access from both Highway 29 and Molino Road, according to submitted plans from owner Ron Scott of Pace.
The proposal is set for final hearing before the Escambia County Development Review Committee on Wednesday, July 10.
NorthEscambia.com graphics.
Comments
13 Responses to “Scott’s Pharmacy Proposes Construction Of New Molino Location”




So excited about Scott’s proposed move . We enjoy doing business with the wonderful people working there .
We love Scotts Pharmacy! So happy to see your progress! There are plenty of mail order pharmacies, big chains, etc but nothing compares to the personalized service thats provided by the staff at Scotts. Congratulations!
Cannot wait to see the local reaction and whining when the speed limits are dropped to 40 MPH one day soon.
Highway 29 is doomed to become just like Highway 90 in Pea Ridge and Milton or Highway 59 in Foley.
RIP 55 and 65 MPH. Free state. Ha!
Good for Scott’s . Not we need a grocery store and Mcdonalds
That’s awesome! Congratulations! I 2nd the “need a grocery store” comment!
That’s awesome. Need a grocery store
This is awesome!!! I love Scott’s Pharmacy! They are always friendly and helpful!
I live in Cantonment but drive to Molino for the best service from everyone at Scott’s.
Walmart, CVS and Walgreens just can’t compete with your home town service.
This is perfect timing. The population is steady growing out here. I believe this would be a great move for Scott’s. The timing couldn’t be better.
That’s great! We could always use a little positive progress in Molino. I mean I am sure I could probably speak for most fellow Molians when I say that we love Molino the way that it is, but we like progress on our terms. A new and local well known business is always good though. I love Molino, and I have studied its past very thoroughly being a historian and all, so I love to see Molino grow.
Good news These are great people Congrats on your expansion
Way to go Ron congratulations on the move
Great news! Love Scott’s Pharmacy!
Hey Ron,
Wonderful news! Hope it is approved! Looks like just what’s needed to get more easily into your pharmacy