Developer Plans New Dollar General For Cantonment
September 1, 2014
Plans are currently in the works for a new Dollar General store in Cantonment.
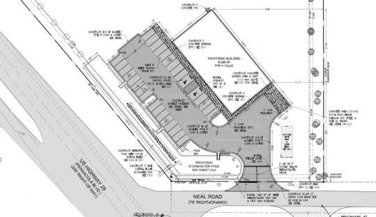
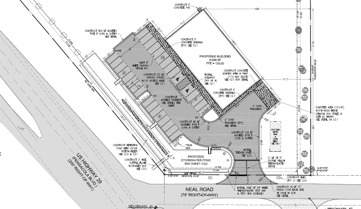
Teramore Development, LLC, of Thomasville, GA, is planning the 9,288 square foot store on a 2.28 acre lot on the northeast corner of the Highway 29 and Neal Road intersection. The lot has been home to various thrift stores for several years.
According plans filed with Escambia County, the new store would not have any vehicular access directly to Highway 29; all driveways would connect to Neal Road. Plans call for the lot to contain 31 parking spaces.
The plans have been presented to the Escambia County Development Review Committee during a pre-application meeting and will be presented for final approval on September 3. The DRC has not made any ruling or recommendations on the store.
The development company previously submitted an initial development review application for a store to be located about one mile away on a 1.03 acre lot at Highway 29 and Woodland Street; however, no additional applications or permits have been pursued for that location.
Comments
20 Responses to “Developer Plans New Dollar General For Cantonment”




What Molino could use is a grocery store.
I would love to open a small personal business in the Cantonment/Molino area! I think I have a great idea, but to even consider buying a C-property is expensive. Forget about building from the ground up. Even looked into renting in a few of the current building that are vacant. They are expensive too.
I was just saying to a friend, “If we knew how many foreclosure properties existed and if every available, for sale or rent property in our area had a sign posted…you’d would think we were living in an up-and-coming Ghost Town.” The economy is really hitting our families hard now. Plus, small businesses are getting big hits too. I was sad to see the Cantonment Pharmacy close it’s doors.
I personally would love to help my community grow by opening a new business! Supporting local and made in USA only products. I would love to be able to offer even a handful of jobs and eventually save enough business dollars to offer scholarships to students in our area! I have big dreams but at times, the risk doesn’t seem to make good business sense.
Look at the recent small businesses that have had those same dreams already. How much support have we been able to provide? Eventually, I see empty shops and that is so sad to me. Business is a risk. But, in today’s economy it seems to be an even bigger risk.
Here is to (my) continued dreaming and community support!
I agree with margielu. Seems this person has some foresight, something county officials usually DONT have when and if they approve things like this.
Would love a Target or Publix in the Molino/Cantonment Area….Maybe even a Walmart….Chick-Fill-A, Taco Bell, Krystals or some other restaurant:-)
Why do we need anything at all? We moved to the country to live in the country.
If we want to eat out, we drive. That was our choice.
If we want to shop at Walmart or Target, we drive. That was our choice.
Leave our country life alone and for the LOVE OF GOD PLEASE do not put yet another light on Hwy 29!!!!!!
Another out of town company that buys everything from their home town and brings their contractors in to build it. some much for the local trades.
I do NOT support the stores.
We need a a Target out here so we don’t have to all the way to Nine Mile and University Parkway.
well another dollar store with a trashy littered parking lot look at the store in gonzalez and molino the parking lot has litter and cigarette butts all over it i wonder if they ever clean around their store or have any pride
CONSIDERING:
“how many do we really need in one area and how lazy are we as a society that we have to have something on every corner…”
We used to have small stores on nearly every corner, back before cheap fuel, good roads, reliable automobiles made it possible to drive further distances economically. That mostly went away and resulted in urban sprawl as people sought more room and the owners of the small stores went broke as people bypassed them to go to IGA, Piggly Wiggly, Food Giant, whatever. (Some stayed in business by selling things people didn’t want to drive half an hour to get one or two items of.)
We aren’t a planned society where the government tells us what we can do and what we need and what we can have. (Those tend to go broke, by the way.)
People will be risking their money in hopes of making money by providing a service to others.
Maybe they will succeed, maybe they will fail.
When we talk about being lazy as meaning the same as not driving further to get what we want, how does lazy enter the picture? The vehicle does all the work.
Stores closer to users should mean fewer vehicles on the roads for less time for fewer miles, thereby making the roads safer, extending the useful life of the vehicles and conserving energy in the process.
To point out that other stores are also needed closer, or at least desired closer is to note other opportunities to serve others for a profit. Nothing stops investors from opening those other things if they believe they can make money by doing so.
David for leaving command economies behind
Maybe they’ll have better management and service than the store in Molino..
We already have 2 Dollar Generals, one just 15 minutes up the road and one in Cantonment. Put a Taco Bell or KFC or even McDonalds out there. And the 29/Neal Intersection is a horrible place to put something. It will turn out to be like another Tom Thumb Intersection. Does the County want to double the deaths in car accidents? Just pick another place that’s not so hazardous. We need another restaurant, don’t get me wrong I love Jimmy’s & Fran’s, and like 429SCJ said we do need a auto parts store out here, because the nearest one is over by West Robert’s Road. Our County need to think before they vote on the approval of this.
The intersection of 29/Neal is a bad spot. I expect we’ll end up with another traffic light on 29. Yahoo!
Oh Yeah! I am excited about a Dollar Gentral. I hope they stock charcoal for smokey eyes!!!
this is just crazy….there are already two Dollar General Stores in the area…one in Molino and one in Cantoment…how many do we really need in one area and how lazy are we as a society that we have to have something on every corner…this is already a dangerous intersection and adding in more traffic that will be turning on to Neal Road will be disastrous. Our county need a better planning and zoning board….just because we can build it does not mean we should.
>>Read a couple weeks ago Dollar General bought out Family Dollar,
Not exactly. Dollar Tree made a bid to buyout Family Dollar, then Dollar General made a bid. Dollar Tree and Dollar General area in a bidding war, with none of the offers accepted yet by Family Dollar.
This store is unnecessary. Read a couple weeks ago Dollar General bought out Family Dollar, we need something else out here like a Walmart Marketplace or better restaurants. There is no need for a 4th store the ones on 29 are spread evenly apart.
We do have plenty of dollar-type stores in the area (Gonzales, Cantonment, Barrineau Rd @ 29, etc.), but this will bring a few more jobs and revenue. My concern is that Neal road will need some improvements, what with increased traffic both east- and west-bound.I hope the county and the developer are planning appropriate road improvements, especially widening and shoulders/turn pocket for the store entrance and improving the shoulder on Neal Rd, and appropriate drainage control since an asphalt parking lot is not going to absorb rainfall and may affect neighboring properties.
I welcome the new business, but see this as a traffic nightmare. I hope they are including a traffic light. Cantonment has more than 7 buildings (including a shopping center) that are vacant right now. Why not consider one of those locations? I’m tired of my hometown looking like a ghost town.
Have a Family Dollar and a Dollar General already. Need a Checkers in old Sonic Building. There is auto parts on 29 south of McDonalds. Have a good grocery store. Have most everything we need. Do Not want to outgrow our community Need a good affordable restaurant One on Tate & 29 is very expensive and Never opens. Don’t waste good land on something we do not need or want
I would think that this area is saturated with dollar stores.
We could really use an auto parts retailer.