Work Is Now Underway At New Bratt Park
August 6, 2009
Work is now underway on the new Bratt Community Park, with the entire park expected to be completed by early next year.
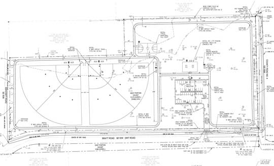
County employees are currently working to install the 8-foot wide, eight-tenths of a mile walking track around the perimeter of the 13-acre park, according to Joy Jones, director of Escambia County’s Parks and Recreation Department.
The next step will be in the installation of the playground at the park, which is located at the corner of Highway 4 and Bratt Road near the First Baptist Church of Bratt. The playground has already been delivered to the county, and it is in storage in Pensacola waiting for an installer from the manufacturing company to begin installation later this month.
“We are just getting started, but we are going to keep it going,” Jones said of work on the park. The county is still waiting on one permit to be issued, she said, and then the work on other park features like the picnic pavilion will begin.
The park will also include two softball fields, a full basketball court and exercise and rest stations positioned along the track. The softball fields will not be lit for night play; in fact, the park’s hours will follow that of other county parks — sunrise to sunset.
The park is being funded with $200,000 in LOST (local option sales tax) monies set aside for the park’s construction.
Jones expects that park will be completed within six months.
Pictured top: Work is underway on the walking track at the new Bratt Community Park. NorthEscambia.com photo, click to enlarge. Pictured below: Plans for the park. Click plans to view the park plan in pdf format.
Comments
5 Responses to “Work Is Now Underway At New Bratt Park”




I hope the youth do use the park. They need a place to “hang out” and have fun. They also need supervision and guidance from the community to keep them in check. I do hope the community gets involved to keep this the best park in North Escambia.
It would seem to me that the parks activities will only be occuring during the daytime hours since it is suppose to not be used after the sun goes down. I don’t ever see any riff-raff hanging around and abusing the Byrneville park when we go past it, so hopefully the Bratt park will be the same. If you see or hear anything that would be considered inappropriate, then my suggestion is to call the police to come and check it out.
It amazes me they can spend that kind of money on a park and not once consider the homeowners who have to live right next to it!!! They weren’t asked how they felt!! If you don’t live near it ask yourself how you would like it right by your house. Im interested to see if it turns out to be what I think it will be which is a teenager hang out with loud music, trash and lots of traffic. Don’t get me wrong it sounds like it will be nice if used in the right way but just don’t want to be next to it!!
I’m excited…now I won’t have to go to Atmore to go walking around the track!
Where is the parking designated to be? Is it that big space located next to the ball parks?
And most all ball parks offer permanant concession stands for refreshments. I am wondering since their won’t be something like that available, if permitted mobile concessions would be allowed to serve the public during practice and games for the players and spectators? Just wondering???