New Convenience Store Planned For Hwy 29, Hwy 97 In Molino
January 16, 2019
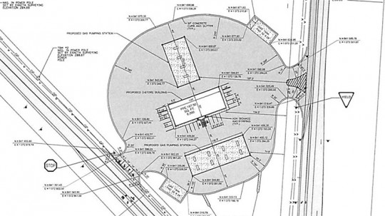
Plans are once again in the works for a new convenience store at the intersection of Highway 29 and Highway 97 in Molino.
Escambia County Development Services records shows Insite Engineering of Birmingham, AL, has submitted initial planning documents for the convenience store on 8.22 acres at the northwest corner of the intersection, across Highway 97 and north of the current Tom Thumb store
The property is currently woodlands and has had no previous development. The area to be disturbed is about 4.5 acres.
Documents show the estimated size of the building to be 6,000 square feet.
The property is owned by DGS Holdings of Atmore. In late 2017, plans were submitted to Escambia County by s Diamond Gasoline of Atmore for a convenience store on the property, but that project was not completed.
The Escambia County Development Review Committee will hold a pre-application meeting on store plans this Thursday afternoon. Before construction could begin,the plans must go through several more steps in the county approval process. At the pre-application stage, there is no assurance that plans will ever reach the construction stage or that the facility will have the currently outlined layout.
NorthEscambia.com graphic showing plans for a new convenience store in Molino, click to enlarge.
Comments
21 Responses to “New Convenience Store Planned For Hwy 29, Hwy 97 In Molino”




I for one hope it gets approved. The pit Tom Thumb needs some good healthy competition then maybe they wine be such a cesspool
Does the sewer line go to To Thumb?
Great, if they do not install a traffic light, there will be additional car accidents on a already accident prone intersection. Never mind, folks down here don’t adhere to stopping at lights or signs. Let the chaos begin.
@Tabby
I’d sure like to know where all of those “Yankees and yuppies” as you call them live in Molino, because I sure don’t see it. The only development Molino has had is a Dollar General, and that’s not saying much.
A new gas station is nice but what Molina Willy needs is a small size grocery store to keep from having to drive into Cantonment to grocery advantage or Winn Dixie. If anyone wants to open one in Molino it would certainly make money.
@Not for long—I agree. We just purchased some property in Jay. My family has owned property for 100 years and now I don’t like Molino. There’s now more Yankee’s and yuppies than locals. I’ve got pics of 196 when it was dirt. With Beulah Beltway, nothing but moving 29 & 9 mile to Molino along with all the crap. Similar to immigration. You want to come here cause of how it is then wanna change it by bringing where your from with you. So sad. At least my property value will shoot up and some yuppy will give me double what it’s worth.
This is going to be wonderful…. It looks like one of the entrances/exits (there are two—-one on Hwy 29 and one on Hwy 97) is quiet a bit past the Tom Thumb entrance at Crabtree Church Road and is quiet a bit north of the traffic light on the south bound lanes of Hwy 29. Won’t be too bad of a problem if people don’t start using the turn lane into new store as a passing lane for people turning on Crabtree Church Road. I really can’t understand WHY Crabtree Church Road wasn’t put at least 400 feet up Hwy 97 when it was built…the land was there and the county has never had a problem claiming/buying land anywhere else. Can’t they buy the land on the corner behind Tom Thumb and move the road.. rerouting it and putting a left turn lane in for people coming from Cantonment and a right turn lane in for people coming from Walnut Hill? Well…whatever happens our family is looking forward to a new store..maybe they will put a restaurant in too, we need one!
Dollar Generals and convenience stores.
Yes sir, from Muscogee Rd to Hwy 97 is going to be destroyed by an influx of development and all we will be able to do is watch or sell out and move.
All those years in the woods will only be memories when the blight of greed descends….
Making it so you can only turn with a green turn arrow will eliminate people “yielding” to oncoming traffic to turn. The competition will be good for customers and it is a growing area. I am surprised this hasn’t happened sooner.
@Molino resident; how much money are they paying you for that lot?
We don’t want another store. Stop trying to make our small town into a big city. We have one convenient store we don’t need another one. I hope this gets denied
Should a company be denied a new site because an intersection is deemed unsafe DUE to stupid people decisions. I hope they follow thru and give the new owners of Tom Thumb a boot in sales
Noooooo!
Just say no!
The designers of that intersection have made it such a nightmare. There is no turn and wait lane for those wanting to get on Crabtree Church Rd.
About 3 cars at most needing to turn there will cause a back up out on Hwy 29. Some drivers will drive around the waiting cars but be off the road to travel Hwy.97. It’s scary. I was never more relieved when last year the bridge was finished on Molino Rd so I would not have to use intersection to get to my home
If they do this, then they should put in a right turn lane as soon as 97 begins. It’s bad enough already having people slam on brakes on front of you to turn left into the Tom Thumb, now they’ll be doing it to turn right into this store as well.
The only thing needed to fix the majority of the issue at that intersection is to make the Highway 29 entrance/exit from Tom Thumb an exit only, stop the people from turning from the north bound turn lane directly into the paths of cars turning south from 97. If someone is in that turn lane, you have no idea if they are going across the intersection or turning into the store.
Trocarman, AGREED! We don’t need another distraction. I also don’t want those woods taken down.
I also agree with Molino resident that the majority of the wrecks caused at that intersection is because of the people not paying attention and also not being patient.
This plan needs to go away.
If people would pay attention to the traffic light and the traffic then these accidents wouldn’t happen. Plus the traffic turning north on 97 wouldn’t have to cross over traffic.
@Trocarman Crabtree Church Rd. Has been there long before the Tom Thumb. A lot of that traffic is turning there because they live there. Molino Ballpark is growing and sees a lot of traffic through the spring and fall. Another store there will make no difference. It is NOT a traffic hazard. People are just so impatient nowadays that anything is considered an inconvenience to them. How about everyone slow down at that intersection and pay attention to what is going on around them and then maybe the accidents will not happen all the time. If there’s a true hazard there, it’s people turning north on 29 from 97. They think they have the right of way over traffic crossing 29 and cut people off every chance they get because they think they have time to turn before crossing traffic.
Sharpen your tip Trocarman, already a terrible intersection. I just take Molino Road to Sunshine Hill or 99A, and simply avoid the chaos.
This is just what the Tom Thumb needs, competition. Consumers will win with lower prices.
I hope this plan is NOT approved! There is already a traffic hazard caused by vehicles headed north on 97 then turning south into Tom Thumb. With The proposed plan adds to the problem by cars/trucks turning north from 97 into the proposed station. Not a good idea. Hopefully the County Commission will stop the proposal.